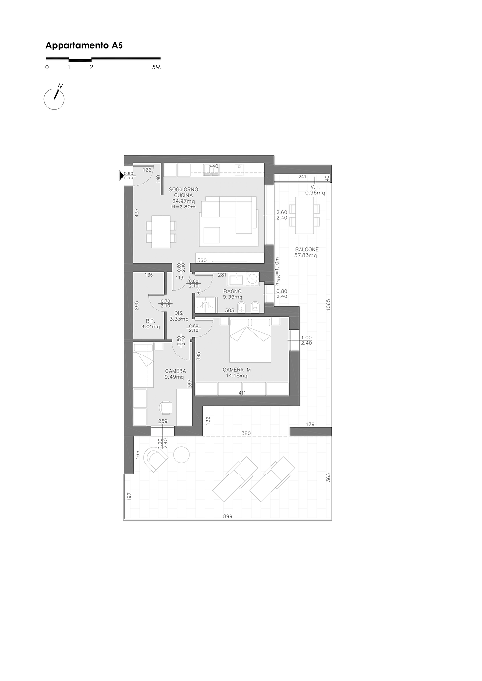
APPARTAMENTO
A5
Trilocale
Loggia
84 mq
Sup. Lorda
115 mq
Per il Piano Primo è disponibile l'opzione Quadrilocale, da concordare previo appuntamento presso i nostri uffici.
84 mq
335.000 €
CONSEGNA
Un appartamento che esprime modernità e prestigio grazie alla perfetta combinazione di interni funzionali e uno straordinario spazio esterno. L'ingresso conduce in un 'ampia zona giorno open-space, dove sogirno e cucina creano un ambiente accogliente e versatile, ideale per ogni momento della giornata.
La zona notte comprende una camera matrimoniale elegante, una seconda camera versatile, _ ideale come studio o stanza dei ragazzi - e un bagno dal design razionale, oltre a un pratico disimpegno con ripostiglio.
L'elemento distintivo è la grande terrazza, uno spazio esterno di rara ampiezza che diventa un vero e proprio salotto all'aperto, perfetto per cene panoramiche, moneti di relaz e occasioni conviviali.
Un trilocale unico nel suo genere, che valorizza il vivere quotidiano trasformandolo in un'esperienza di comfort e stile contemporaneo.










