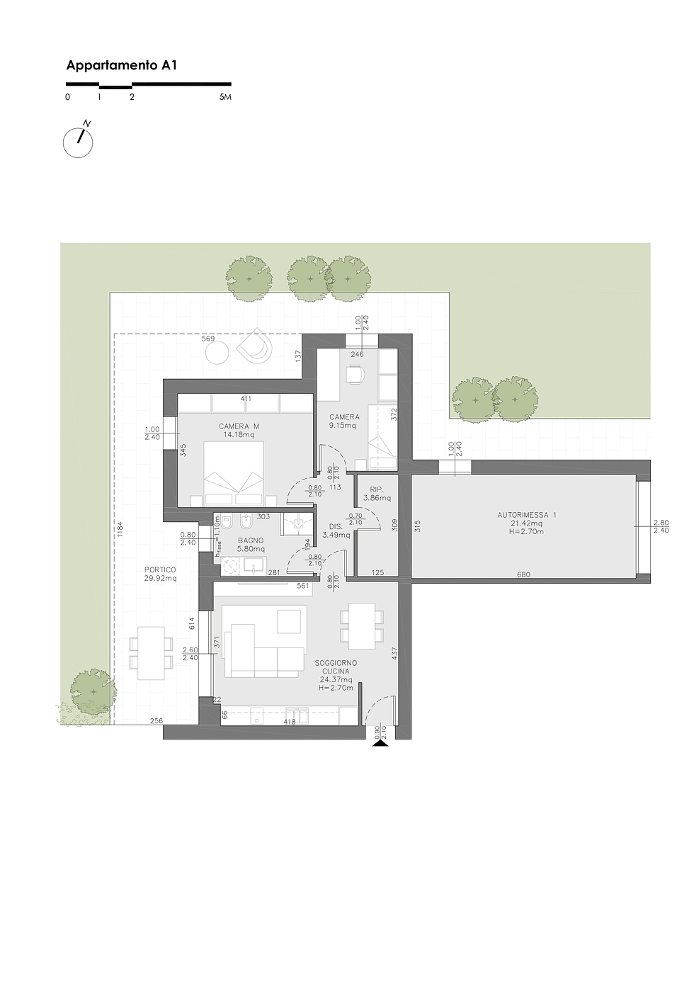
APPARTAMENTO
A1
Trilocale
Loggia
84 mq
Sup. Lorda
Assegnazione obbligatoria Autorimessa 1 (inclusa nel prezzo)
133,00 mq
84 mq
423.000 €
CONSEGNA
Trilocale elegante e funzionale, ideale per chi cerca confort e modernità in un contesto di pregio. Lingresso conduce in una luminosa zona living open space, cuore della casa, dove soggiorno e cucina si fondono in un ambiente accogliente e conviviale. La zona notte è ben separata, con una spaziosa camera matrimoniale, una seconda camera versatile - perfetta come studio o cameretta - e un bagno finemente distribuito.
Il vero punto di forza è l'ampio portico coperto, un'estensione naturale della zona giorno, pensato per vivere all'aperto in ogni stagione e accogliere momenti di relax o convivialità. Completa la proprietà l'autorimessa, che aggiunge praticità e valore all'abitazione.
Un trilocale raffinato, dagli spazi equilibrati e dalla disposizione moderna, capace di unire funzionalità quotidiana e prestigio abitativo: la soluzione ideale per chi desidera vivere con stile senza rinunciare al comfort.










